Inventory Fleet

 

The locally owned and operated Texas State Modular offers in-stock modular fleets ready for lease and sale. While we can also custom-build shipping containers, if you want something standard, we have lots of products in stock at all times throughout the Dallas Metroplex and surrounding areas.

Among the many options we carry in stock, these are the most common uses of our ready-to-use equipment utilized in these applications:

  • Temporary job site office/construction management facility
  • Sales office for premier home builders
  • Education classroom/administration office
  • General expansion space for various businesses
  • Medical professional space

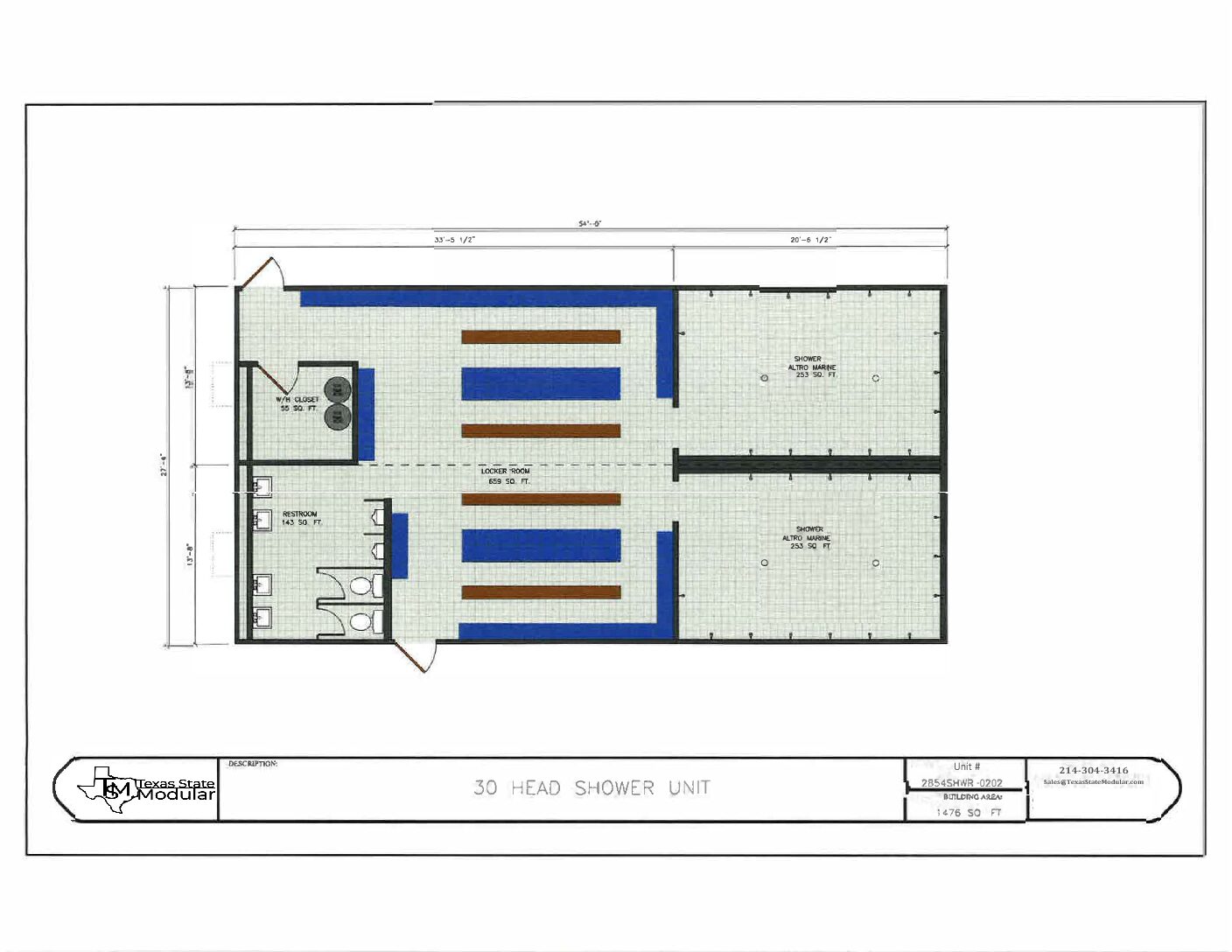
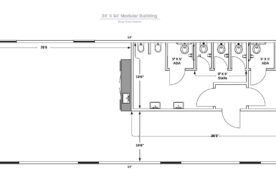
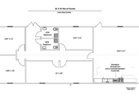
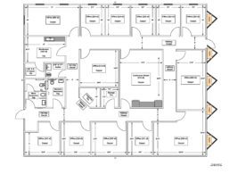
In addition to our stock fleet, we build custom floor plans to meet your needs and applications. We can take your ideas and turn them into real usable space, quickly and economically. You can also choose from an existing floor plan and we will custom tailor it to fit your needs. We achieve this by adding or removing walls, restrooms, exterior coloring, interior finishes, flooring, and more.

Fleet Inventory Availability

 

12' wide offices CUSTOM

14' – 18’ wide offices CUSTOM

Double wide buildings

Double wide buildings CUSTOM

Storage Container/Conex Storage

Conex Offices and other Conex Buildings

Security/Guard Shacks

ADA Decks/Ramps and Canopies